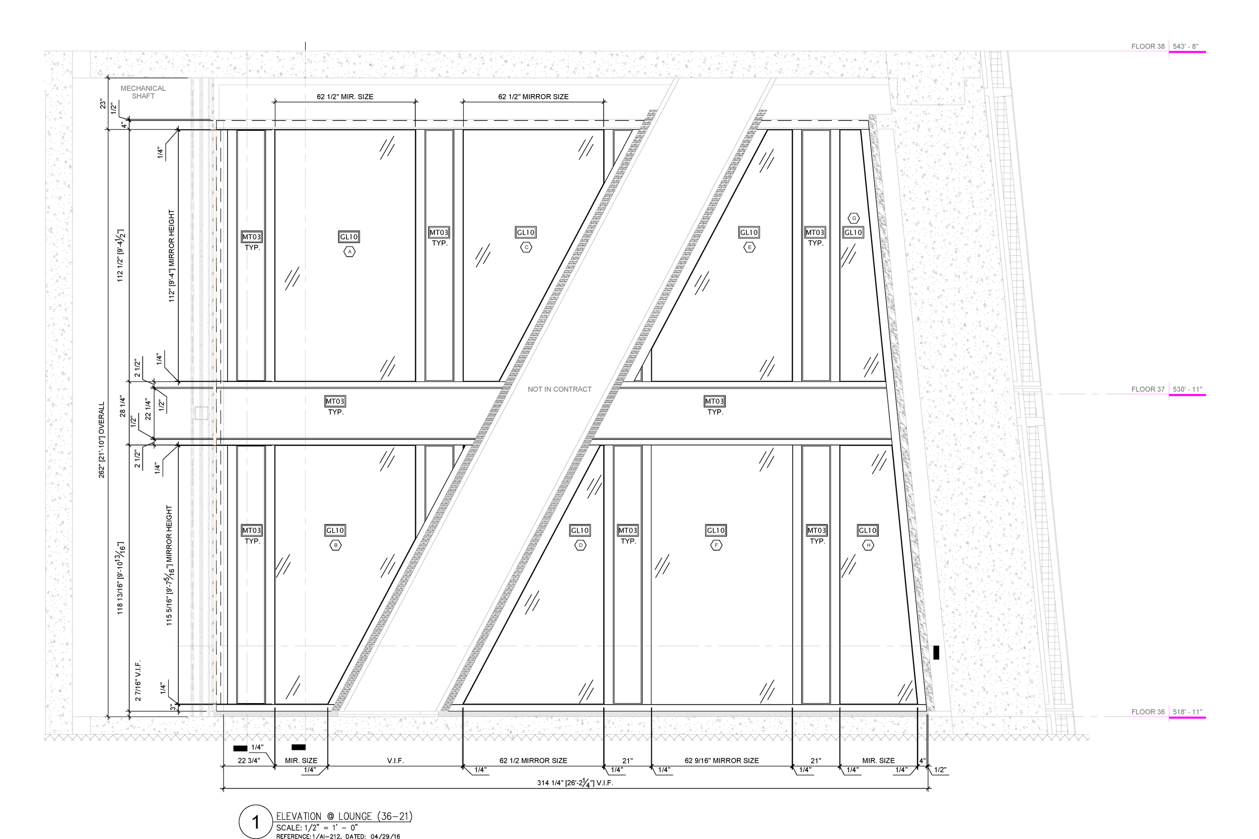
Curtain Wall / Metal & Glass Wall Panel Project

Take a look at a selection of our curtain wall and metal-and-glass projects at Moma Apartments, crafted with care and designed to make an impact. Each one tells a story of creativity, collaboration, and results.

Previous
Previous

Shower Enclosure Project

Next
Next

Stairs Project