Specialty Drafting & Shop Drawing Services

Mynnova Group provides fabrication-ready drafting and shop drawing services for architectural metal, glass, and millwork systems.

Our work supports fabricators, contractors, developers, and design teams with clear, buildable documentation developed for coordination, fabrication, and installation.

Select a service below to learn more.

Our Services

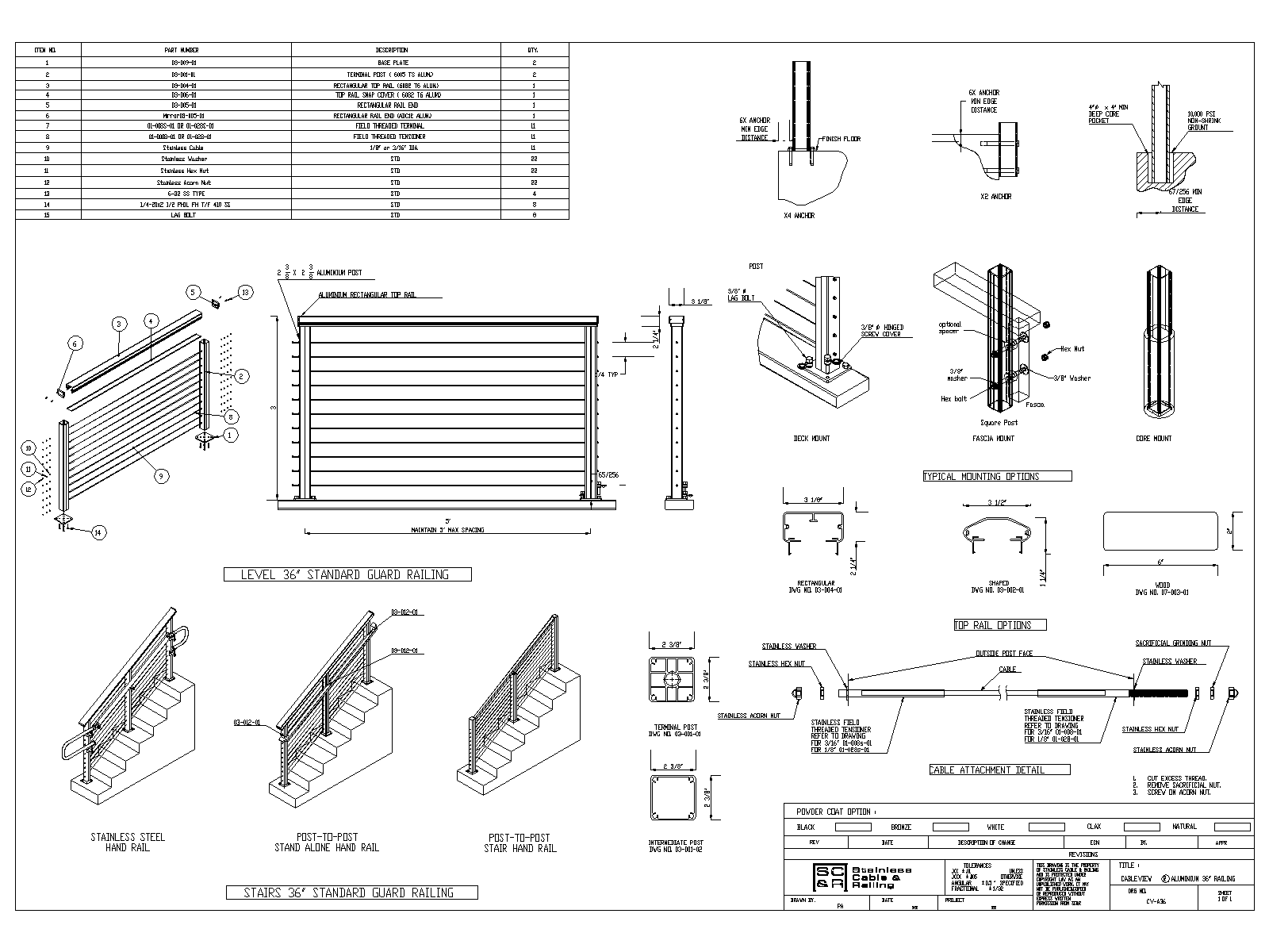
Ornamental Metal Shop Drawing

Fabrication-ready shop drawings for railings, stairs, guards, and architectural metal systems. Drafting developed with constructability, tolerances, and installation sequencing in mind.

Glass & Glazing Shop Drawing

Detailed shop drawings for curtain wall, storefront, and glass systems. Our drafting supports accurate fabrication, clean approvals, and coordinated installation.

Millwork & Casework Shop Drawing

Shop drawings for custom cabinetry and architectural millwork, developed to support precision fabrication, joinery clarity, and coordinated interiors.