Translating Design Into Buildable Systems

We provide precise, fabrication-ready drafting for ornamental metal, architectural glass, and custom millwork, supporting fabricators, contractors, and design teams from design intent through installation.

What We Do

Fabrication-Focused
Drawings developed for constructability, tolerances, and real-world fabrication methods.

Detail-Driven
Connection details, sections, anchorage, and interfaces are coordinated down to the fastener.

Schedule-Responsive
Drafting support structured to meet submittal timelines and field demands.

Who We Support

  • Ornamental metal fabricators

  • Glass and glazing contractors

  • Millwork and casework shops

  • General contractors & construction managers

  • Architects and engineers (design-assist)

Our Focus

Mynnova Group is a specialty drafting consultancy dedicated to architectural trades that demand accuracy, coordination, and speed.

We specialize in shop drawings and fabrication documentation that translate architectural design into buildable, installable systems. Our work reduces RFIs, accelerates approvals, and minimizes field conflicts.

How We Add Value

  • Clear interpretation of design intent

  • Fabrication-aware detailing

  • Constructability and sequencing insight

  • Clean, review-ready submittal packages

Our Services

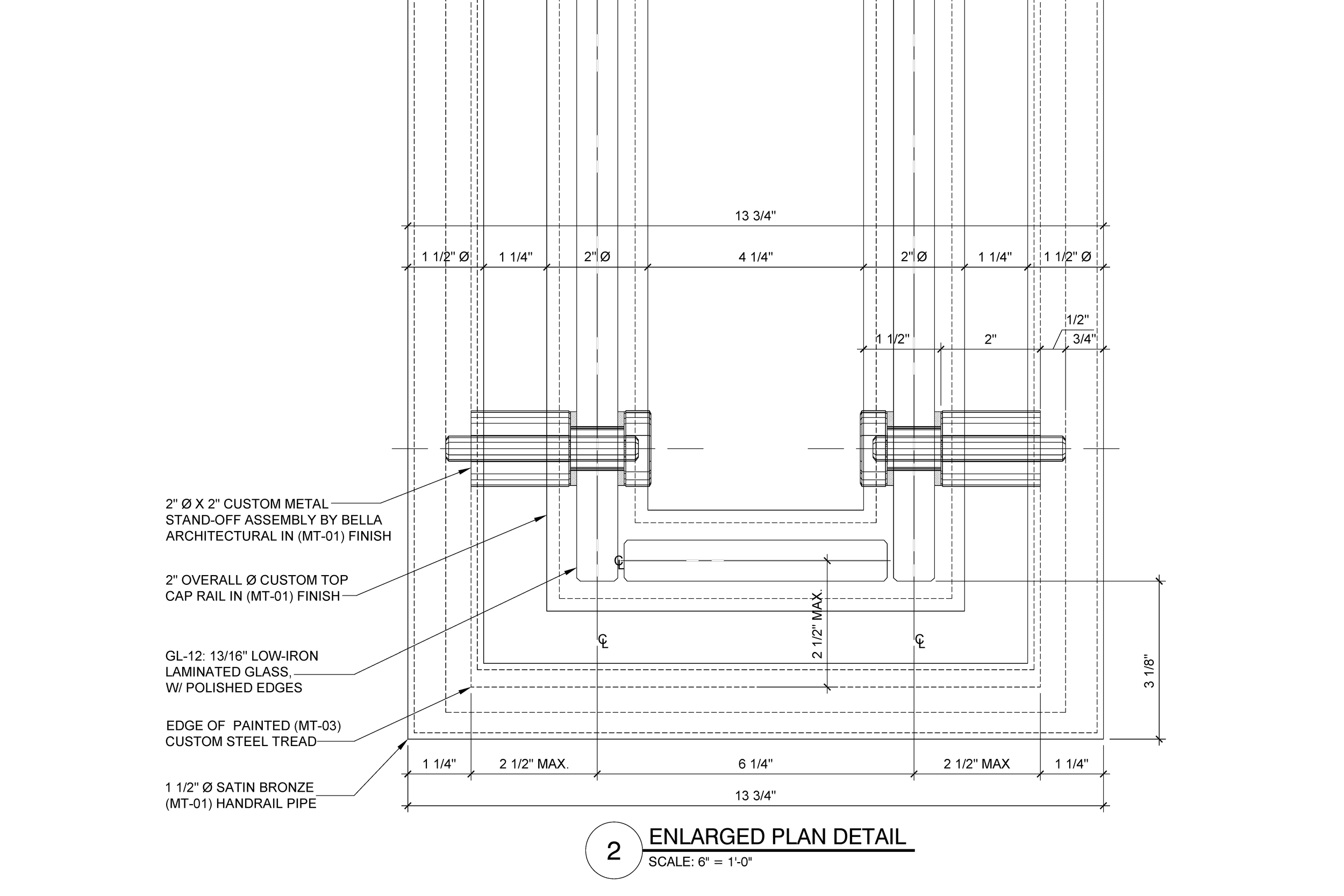
Ornamental Metal Shop Drawing

Fabrication-ready shop drawings for railings, stairs, guards, and architectural metal systems. Drafting developed with constructability, tolerances, and installation sequencing in mind.

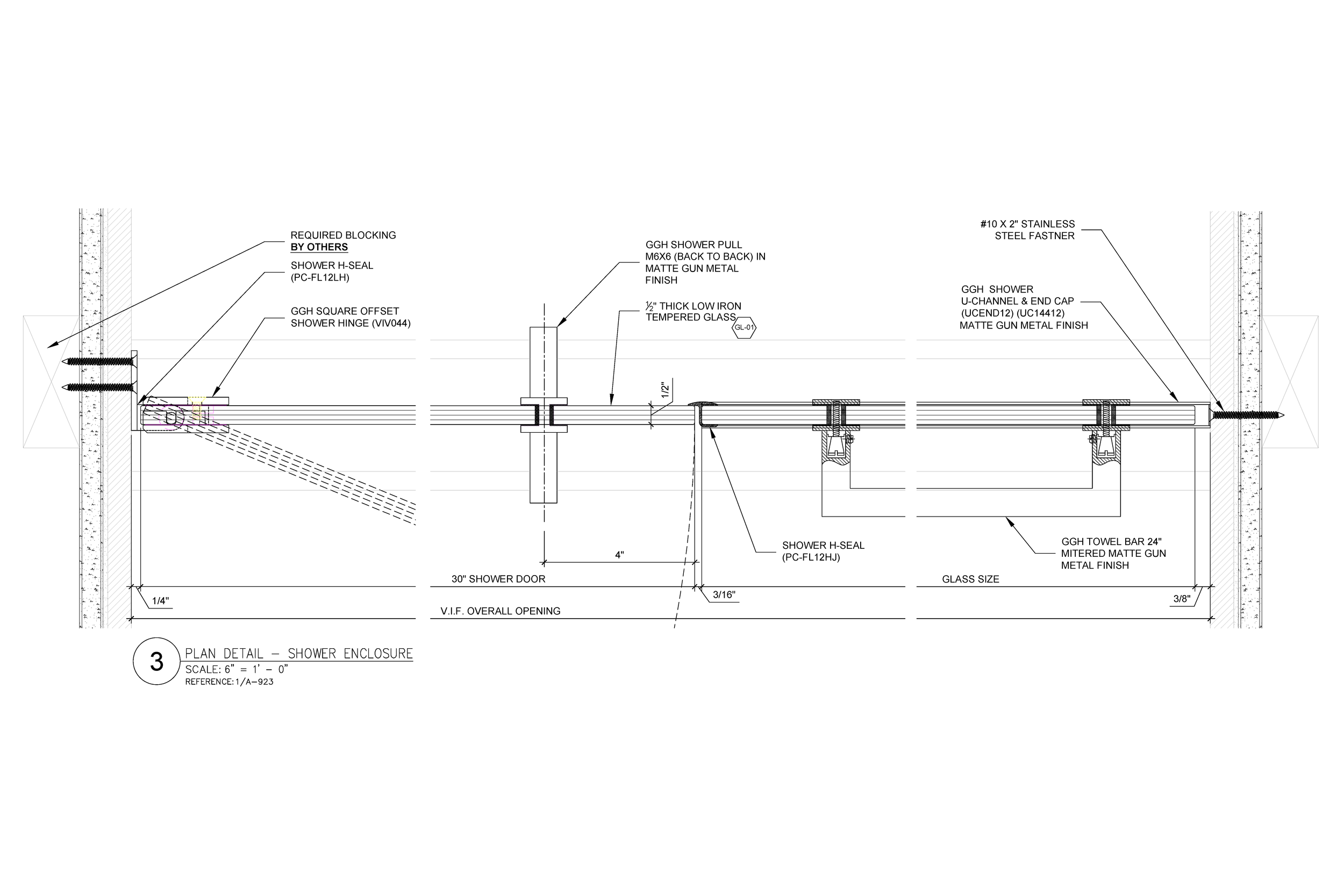
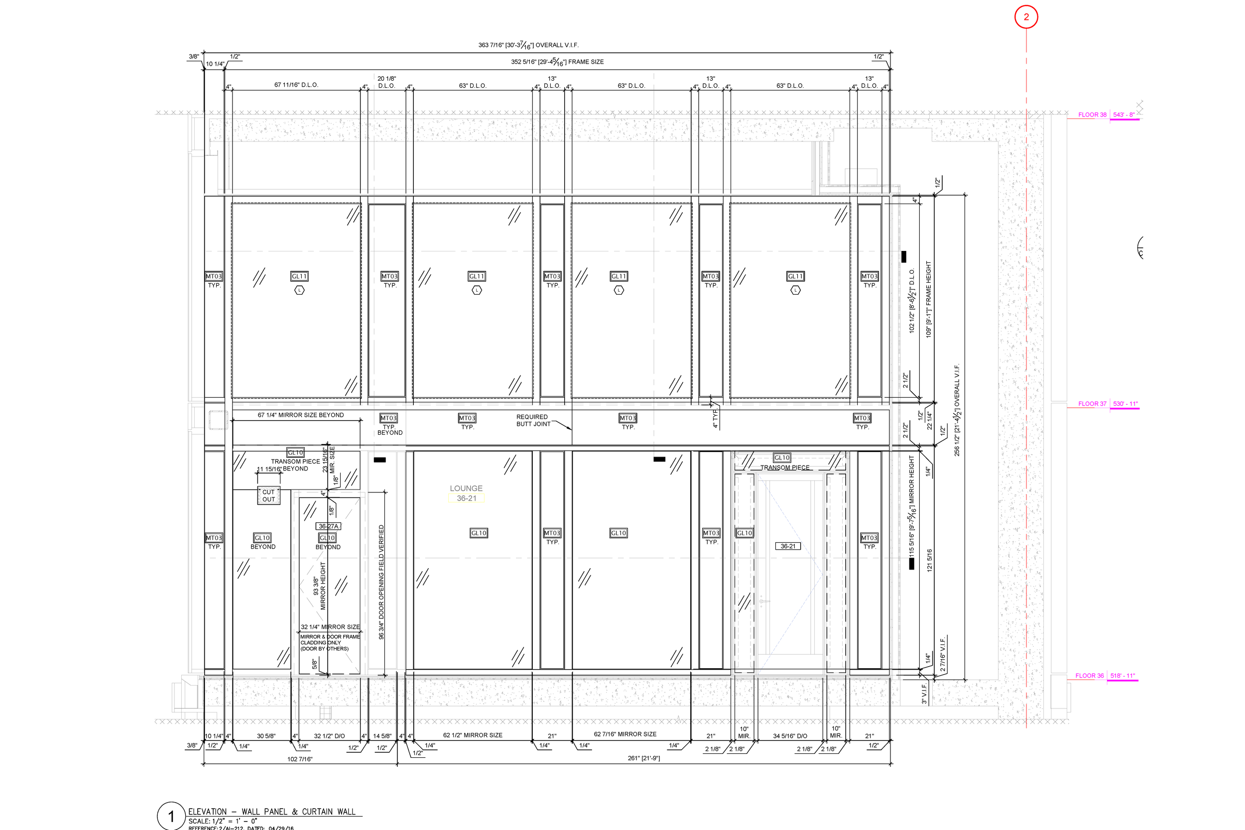
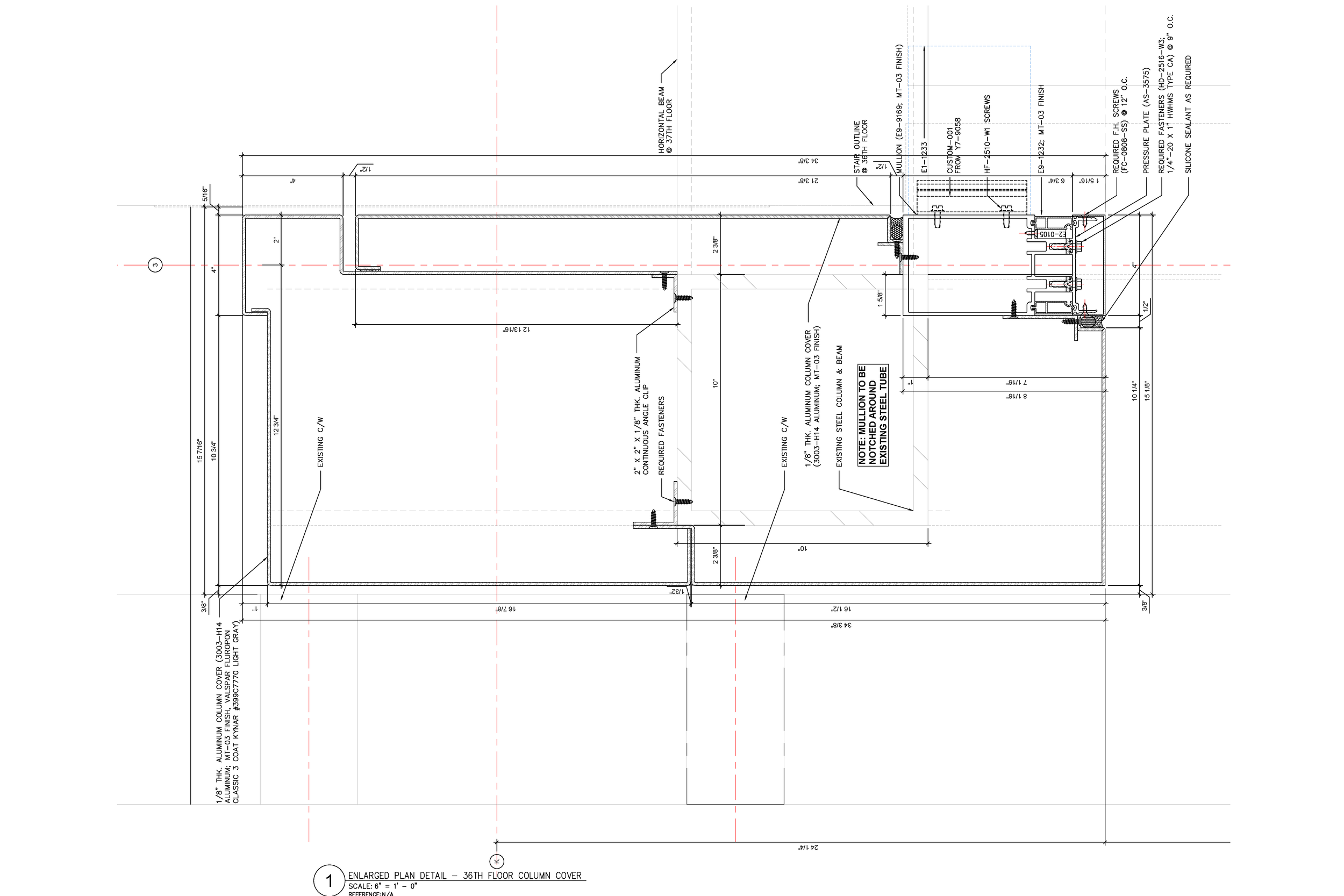
Glass & Glazing Shop Drawing

Detailed shop drawings for curtain wall, storefront, and glass systems. Our drafting supports accurate fabrication, clean approvals, and coordinated installation.

Millwork & Casework Shop Drawing

Shop drawings for custom cabinetry and architectural millwork, developed to support precision fabrication, joinery clarity, and coordinated interiors.

40

Years of Experience

520

Projects Completed

42

Clients Served

Featured Projects

Let’s Discuss Your Project

Whether you’re preparing for submittals, coordinating trades, or moving toward fabrication, we can support your project with clear, buildable drafting.

Share a few details about your scope and schedule, and we’ll follow up to discuss how we can assist.